Permeabilidade ao Ar

Classe 3

Estanquidade à água

Classe 7A

Resistência ao Vento

Classe C5

Transmissão Térmica

Uw=2,20 W/m² .ºC

Atenuação Acústica

Rw(C;Ctr)≤30(-1;-2)dB

N24000

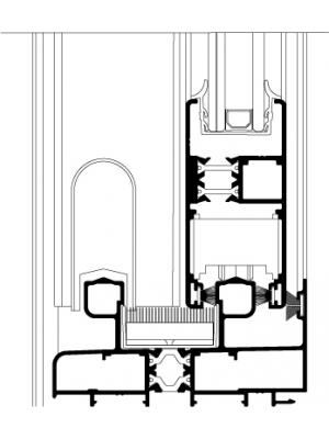
Permite a realização de janelas de peitoril e de sacada termicamente melhoradas, tendo uma boa resposta às exigências atuais da construção, tais como isolamento térmico, economia de energia, a resistência mecânica, a durabilidade e a segurança na utilização. 
Sistema de correr perimetral com barras de poliamida de 14.8 mm, reforçadas com fibra de vidro para fazer o corte térmico, aros fixos de 91 mm de profundidade, com opção em tri-rail e aros móveis de 75 mm de vista, para vidro duplo.
Sistema de vedação utiliza pelúcias com lâmina central, o que melhora a estanquidade à água e a permeabilidade ao ar. Possibilita a realização de vãos bicolor (interior/exterior).

Veja mais projectos com os sistema Navarra aplicados
Portefólio de obras